GLS概率筛产品说明
1、GLS概率筛是一种新型高效的筛分设备,其筛箱运行轨迹为直线。该系列筛机系概率理轮与工程实际有机结合的成功典范,其全新的设计理念和独特的结构及筛分原理成就了概率筛几近完美的筛分效果,具有广阔的应用前景。
2、GLS概率筛系我公司引进德国和西班牙等国先进技术,结合我国实际情况及使用环境充分论证、板尽优化而设计的,与普通筛机相比,该系列筛机具有非常高的筛分效率,广泛适用于医药、化工、食品等行业对中、细粒度的精细筛分。
3、为什么要选用GLS概率筛,因为GLS概率筛质量可靠、投资低、体积小、运行可靠的专用设备,是保证砂浆筛分质量和产量的关键,概率筛为首选;GLS概率筛在预拌砂浆中的筛分、分级一般设置在原料储存仓顶部,经筛分分级后的不同粒径的砂子直接送入相应的储存仓。在砂子进入烘干机前,为防止大的块状物料进入烘干机,可以选用直线筛或高效筛进行预筛。
GLS概率筛的应用
GLS概率筛主要用于砌筑砂浆、抹面砂浆、保温砂浆、天然河沙,石英砂聚合物保温砂浆、粘结砂浆、抗裂砂浆、地坪砂浆、装饰砂浆、防水砂浆、腻子粉、粉刷石膏、弹性砂浆等等各种烘干后的粒度筛选和分级。合作厂家:长沙中联重工;三一重工;上海摩台克;天地重工,圆友机械等知名企业。
GLS概率筛现场:

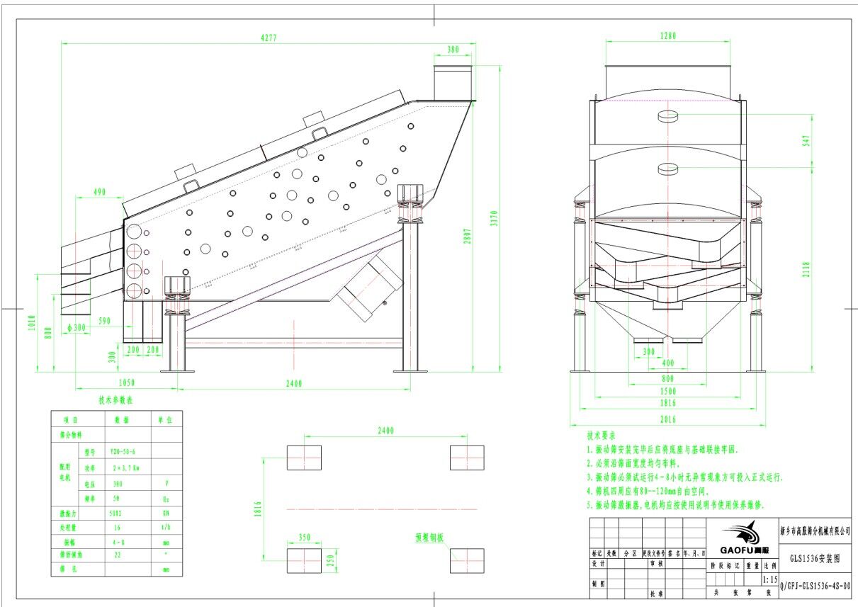
GLS概率筛外形图:

GLS概率筛选用提示
1、 GLS概率筛,计有(14)个定型规格并有振动电机和激振器两种振源形式,适用不同作业环境需求,选用时请确定电压制式及有无防爆要求;
2、设备安装方式有支座式和吊挂式及二者搭配式等多种形式,选型时,请务必慎重考虑。
GLS概率筛的结构
GLS概率筛常用材质为Q235A碳钢,均为封闭结构;振动电机作激振源,分别为一层、二层、三层、四层等多层设计。
GLS概率筛常用型号
GLS-1020型;GLS-1225型;GLS-1530型;GLS-1536型;GLS-1836型;GLS-2030型;
GLS概率筛技术数据表
|
型号 |
常用网孔尺寸 |
大约处理量 |
配套电机型号 |
功率 |
|
GLS1020 |
0.3-0.6-1.2-2.4-4.5 |
15t/h |
YZO20-6 |
1.5KW*2 |
|
GLS1224 |
0.3-0.6-1.2-2.4-4.5 |
25t/h |
YZO25-6 |
1.8KW*2 |
|
GLS1536 |
0.3-0.6-1.2-2.4-4.5 |
35t/h |
YZO50-6 |
3.7KW*2 |
手机版|

















